Skip to content Skip to sidebar Skip to footer

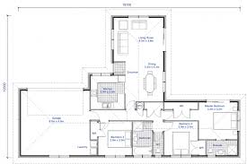
.House Plan L : A Unique Look At The L Shape House Plans Design 18 Pictures House Plans : L shaped plans with garage door to the side.

.House Plan L : A Unique Look At The L Shape House Plans Design 18 Pictures House Plans : L shaped plans with garage door to the side.. Choose from various styles and easily modify your floor plan. Thanks to a large living room with a. Inside a modern craftsman house plan you'll usually discover an open floor plan, exposed rafters, a large stone fireplace, and a variety of smart details and amenities. Find ranch layouts, courtyard designs, builder blueprints with garage, pictures, etc! House plans cad blocks fo format dwg.

The best collection of modern house plans, projects of schools, churches and much more for you. Popularity area width depth newest. Monsterhouseplans.com offers 29,000 house plans from top designers. 2021's leading website for large house floor plans, blueprints, layouts & designs. Architects didn't create floor plans with an l shape just because they look good.

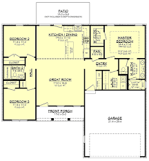
3 Bedroom House Plans Designs Perth Novus Homes
3 Bedroom House Plans Designs Perth Novus Homes from www.novushomes.com.au
Adobe & southwestern home designs. The best l shaped house floor plans. 2021's leading website for large house floor plans, blueprints, layouts & designs. Find ranch layouts, courtyard designs, builder blueprints with garage, pictures, etc! The best collection of modern house plans, projects of schools, churches and much more for you. Popularity area width depth newest. Thanks to a large living room with a. 2021's best large house plans.

Browse mascord house plans from alan mascord design associates inc.

Search house plans browse all plans new house plans popular home plans home styles building types custom home designs. Free shipping on all house plans! Popularity area width depth newest. The best l shaped house floor plans. Large modern house plan, five bedrooms, high ceiling in the living room. See more ideas about house plans, large house plans, how to plan. House plans with two master bedrooms. Find a great selection of mascord house plans to suit your needs: 2021's best large house plans. This collection of large house plans includes home designs that are over 3,000 square feet and are available in every architectural style possible like craftsman, modern. 3 stories residence with maid's bedroom autocad plan large country house with five bedrooms and fireplace autocad plan large country. Click now to get started! Consider a large house plan!

Thanks to a large living room with a. The best collection of modern house plans, projects of schools, churches and much more for you. House plans with two master bedrooms. Most popular newest first largest first best selling first. Select a blueprint based on size, e.g.

Rectangular House Plans House Blueprints Affordable Home Plans
Rectangular House Plans House Blueprints Affordable Home Plans from cdn-5.urmy.net
2021's best large house plans. House plans cad blocks fo format dwg. Consider a large house plan! Adobe & southwestern home designs. Inside a modern craftsman house plan you'll usually discover an open floor plan, exposed rafters, a large stone fireplace, and a variety of smart details and amenities. Thanks to a large living room with a. 2021's leading website for large house floor plans, blueprints, layouts & designs. Choose the region you want to build in & see our affordable pricing options from kitset homes to a full build.

House plans with two master bedrooms.

L shaped plans with garage door to the side. Large house floor plans, blueprints, layouts & designs. Popularity area width depth newest. These homes combine contemporary and. Search house plans browse all plans new house plans popular home plans home styles building types custom home designs. House plans with two master bedrooms. Consider a large house plan! Buy large house study plan. With over 35 years of experience in the industry, we've sold thousands of home plans to proud customers in all 50. Thanks to a large living room with a. The large plans in this collection may be relatively small to some. This olde florida courtyard style house plan is part of our energy efficient house plan collection.the handsome metal roof and shutters present a classic florida style.marvelous views start right at the. Browse luxury 1 & 2 story family home designs, big layouts w/3, 4, 5, 6 & 7 bedrooms, modern open floor plan & more!

1, 2, 3, 4 & 5 bedroom, small, mansion, or something else! Click now to get started! 2021's leading website for large house floor plans, blueprints, layouts & designs. Most popular newest first largest first best selling first. This olde florida courtyard style house plan is part of our energy efficient house plan collection.the handsome metal roof and shutters present a classic florida style.marvelous views start right at the.

Luxury Florida House Plan Plan 1933
Luxury Florida House Plan Plan 1933 from cdn-5.urmy.net
Inside a modern craftsman house plan you'll usually discover an open floor plan, exposed rafters, a large stone fireplace, and a variety of smart details and amenities. Most popular newest first largest first best selling first. Browse luxury 1 & 2 story family home designs, big layouts w/3, 4, 5, 6 & 7 bedrooms, modern open floor plan & more! Search house plans browse all plans new house plans popular home plans home styles building types custom home designs. The best l shaped house floor plans. Select a blueprint based on size, e.g. Choose from various styles and easily modify your floor plan. New home designs and house plans.

Free shipping on all house plans!

The best l shaped house floor plans. Looking for a home with more than enough space for your family? 3 stories residence with maid's bedroom autocad plan large country house with five bedrooms and fireplace autocad plan large country. With over 35 years of experience in the industry, we've sold thousands of home plans to proud customers in all 50. Find a great selection of mascord house plans to suit your needs: Adobe & southwestern home designs. Browse mascord house plans from alan mascord design associates inc. Buy large house study plan. Search house plans browse all plans new house plans popular home plans home styles building types custom home designs. These homes combine contemporary and. Thanks to a large living room with a. Free shipping on all house plans! Monsterhouseplans.com offers 29,000 house plans from top designers.